Pryltips: Nytt TV-fäste monteras i fönsterramen

Campingland.dk - Datum: 07/05-2015

Tips & tricks ·  Här behövs inga skruvar för montering och du slipper krångel med stora tv-bord m.m.

Flytta ut platt­skärmen i för­tältet med detta praktiska TV-fäste.

Många känner igen krånglet med att behöva ha ett platskrävande TV-bord stående, eller att TV:n måste tas ut genom dörren via ett invändigt fäste i husvagnen för att kunna titta på TV i för­tältet.

Nu finns det äntligen en funktionell lösning på det.

Detta smarta TV-fäste sätts helt enkelt på fönsterramen och fönstret kan stängas i transportläge.
Det är enkelt att montera och ta bort igen.

Fördelar:
• Inga skruvar i vagnen
• Enkel montering
• Tar ingen plats i för­tältet
• Rispar inte vagnen
• Klarar TV upp till 40” platt­skärm
• Låg vikt
• Hög kvalitet
• Dansktillverkat

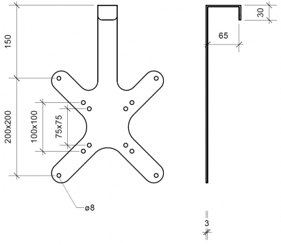
Fästet passar de flesta platt­skärmar.
Skruvmått: 75x75mm - 100x100mm - 200x200mm
2 olika modeller: Kort modell 35 cm och lång modell 45 cm